Inspiration

News

Stay up to date with the latest news and information

A collaboration of innovative design and impeccable architecture forms the most prestigious development in the Alps to date, the unrivalled 7 Heavens in Zermatt.

Chalet Mckinley is one of seven sumptuous chalets that comprise the 7 Heavens project in Zermatt, which is also home to Haute Montagne’s Chalet Aconcagua, Chalet Elbrus, and Chalet Denali. Together they form one of the most prestigious private chalet developments in the Alps.

A true masterpiece of style, this uber-luxurious chalet is ideally located in the very centre of the village, in immediate proximity to the shopping, night life and the main railway station. The Sunnegga funicular is only a short stroll from the chalet and whisks you directly up to the ski slopes in three minutes.

You enter the 7 Heavens residence through the impressive entrance hall leading into the lobby and central living room. Here you will find a wonderful relaxation area with bar ideally positioned in front of the roaring fire. On the upper floor of the central living room there is a state of the art gym with the latest equipment and plenty of space for an after-ski workout.

This incredible private chalet sleeps a total of ten people over four floors. Relax in Chalet McKinley’s private spa which is a sanctuary of personal wellbeing and tranquility or socialise with family and friends in the impressive living and dining area. This beautifully presented property provides you with every luxury and comfort you could wish for, ensuring you have a truly memorable stay with Haute Montagne from whom you can expect stunning service throughout your stay.

From the central living area of the impressive 7 Heaven’s building you enter the chalet onto the ground floor which is home to the private ski room with guest restroom. Here there is a lift which runs through the property.

The first floor sets the scene of a tranquil mountain sanctuary. There is a simplicity in design which is perfectly harmonised with cosy, alpine-inspired features. There are three double bedrooms, all with en-suite shower rooms. Two of the bedrooms have small dressing rooms, and all feature private balconies which open up to the wonderful views of Zermatt. A small staircase from this floor leads to the playroom which has an impressive revolving TV, day beds, and a separate shower room. The second floor is home to the two master double bedrooms.

There is a generosity of space with both bedrooms having large balconies and comfy seating areas. Private massages arranged by your dedicated chalet manager can be taken in the massage room which is also found on this floor.

Wellness is at the heart of Chalet Mckinley and ideally positioned between the first and second floor you will find the impressive private spa. Sensitively lit and sumptuously designed, there is every feature you could wish for from your private in-chalet spa and wellness area. There is a large indoor hot tub, sauna, hammam and plunge pool. A wonderful seating area provides the perfect spot to enjoy a glass of champagne and relax with friends.

Gazing over Zermatt, the top floor provides an idyllic platform for experiencing panoramic views of both the village and the majesty of the surrounding mountains. The open plan living and dining area is the pinnacle of contemporary alpine design.

Sophisticated and stylish, the wood burning fire place is perfectly positioned in the heart of the sitting room. Floor to ceiling windows open out onto the large balcony, which has a stylish seating area perfect for enjoying an aperitif while watching the sun go down in the evening. The dining room caters for wonderful evening meals, and, for maximum privacy, the chef can work in the professional kitchen on the ground floor of the property.


Property highlights

  • 692 Square metres
  • Sleeps 10
  • 5 Bedrooms
  • TV/games room
  • Hammam/steam room
  • Indoor hot tub
  • Massage treatment room
  • Plunge Pool
  • Sauna
View 22 amenities

Enquire today

Chalet Mckinley

Price from CHF 52,090 to CHF 120,530

Security Deposit: CHF 25,000

BETA Chalet Enquiry
Our sales team is available 7-days a week between 09.00 to 19.00 (Central European Time) on +41 43 883 9040.

Service levels

Floorplans

TOP FLOOR

  • Open plan living and dining area
  • Open plan kitchen
  • Balcony
Download

SECOND FLOOR

  • Master bedroom (sleeps 2, en-suite shower room, balcony)
  • Master bedroom (sleeps 2, en-suite shower room, balcony)
  • Spa and wellness area with large indoor hot tub, hammam, sauna and plunge pool
  • Massage room
Download

FIRST FLOOR

  • TV and games room
  • Double bedroom (sleeps 2, en-suite shower room, dressing room, balcony)
  • Double bedroom (sleeps 2, en-suite shower room, balcony)
  • Double bedroom (sleeps 2, en-suite shower room, balcony)
Download

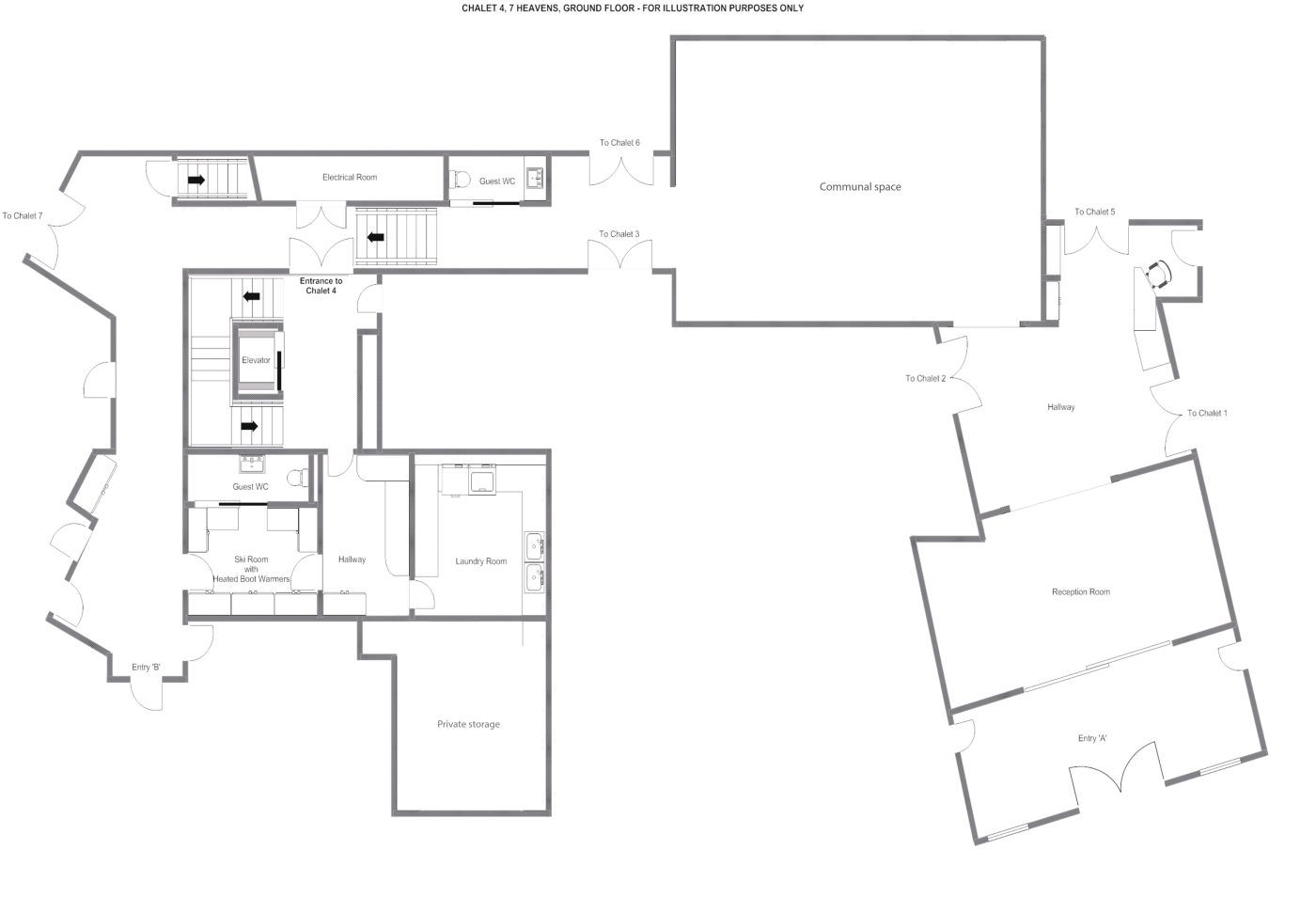
Ground Floor

  • Ski room with heated boot warmers
  • Laundry
  • Professional kitchen
  • Communal entrance lounge and bar
  • Gym
Download
  • TOP FLOOR

    • Open plan living and dining area
    • Open plan kitchen
    • Balcony
    Download
  • SECOND FLOOR

    • Master bedroom (sleeps 2, en-suite shower room, balcony)
    • Master bedroom (sleeps 2, en-suite shower room, balcony)
    • Spa and wellness area with large indoor hot tub, hammam, sauna and plunge pool
    • Massage room
    Download
  • FIRST FLOOR

    • TV and games room
    • Double bedroom (sleeps 2, en-suite shower room, dressing room, balcony)
    • Double bedroom (sleeps 2, en-suite shower room, balcony)
    • Double bedroom (sleeps 2, en-suite shower room, balcony)
    Download
  • Ground Floor

    • Ski room with heated boot warmers
    • Laundry
    • Professional kitchen
    • Communal entrance lounge and bar
    • Gym
    Download
Let us help you write your winter story Speak to our team

The location

Very central yet totally private and exclusive, this unrivalled development in the heart of Zermatt offers perfect Matterhorn views and sits a short stroll from both the centre of town and the ski lifts.

Proximity

Sunnegga - 1-minute walk
Kleine Matterhorn - 5-minute drive

Town centre - 5-minute walk

Address

Zermatt

Latitude: 46.021891, Longitude: 7.751593

Discover Zermatt

Inspiration for your upcoming Zermatt holiday Discover Zermatt