Inspiration

News

Stay up to date with the latest news and information

Stunning newly built standalone chalet in a peaceful area of Meribel, with easy access to the gondola and outdoor hot tub.

This stunning newly renovated chalet is tucked away in the tranquil Raffort hamlet in Meribel, only a five-minute walk from the Olympic gondola. This stylish and elegant chalet blends modern design with alpine furnishings. When the snow conditions allow, skiing right up to the chalet is possible via an off-piste section from the blue Raffort slope. You arrive directly at garden level, at the front of the chalet.

On the ground level, you'll find everything you need to ease into your stay. Upon entering the chalet, you’ll find the spacious ski room with boot warmers and a laundry room. Adjoining this room is a delightful games room, complete with a table football table & seating area, perfect for the children to enjoy after a busy day skiing. 

This floor also houses the first two bedrooms. The first is a charming children’s bunk room with a small window sleeping four, complete with an en-suite bathroom (pictures coming soon). Next door is the first double bedroom, an elegant and stylish space with floor-to-ceiling windows and an en-suite shower room with a spacious walk-in shower.

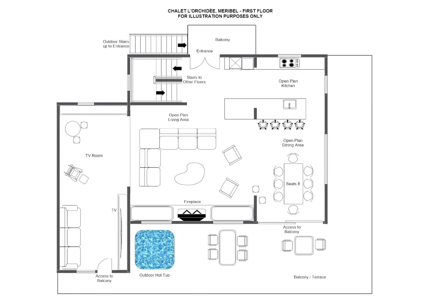
At the heart of the chalet is a spacious open-plan kitchen, dining, and living area on the first floor, where sleek modern design meets cosy alpine warmth. Light pours in through floor-to-ceiling windows, and there is another entrance to the chalet here: a small balcony with external steps from the ground floor leads directly to a door opening into the kitchen.

The chalet features a grand and spacious kitchen, in keeping with the traditional alpine aesthetic, thanks to wood cladding throughout, yet fully modern with a large marble kitchen island. The dining area, which seats eight, sits in front of the floor-to-ceiling windows, offering fabulous views of the alpine surroundings, perfect for enjoying breakfast with a view. A generous balcony extends from this space, spanning the entire floor, the perfect spot for morning coffee or soaking up the mountain sun, with no property in front you are totally secluded in nature here, perfect for a moment of quiet to begin the day. The balcony includes an outdoor dining table for al fresco meals surrounded by nature. You’ll also find the hot tub here, perfect for soaking sore muscles after a day of skiing or admiring the stars above as the snow falls around you and the steam rises.

After dinner, relax around the cosy fireplace, sharing tales of the day. Next to the living room, separated by a partial wall, is a TV room with a spacious, plush sofa, perfect for letting the children unwind whilst the adults entertain next door. 

On the next floor, you'll find the main sleeping quarters, comprising three double bedrooms. The first is an elegant twin/double room with an en-suite shower room and mountain views stretching towards Méribel. The second is also a twin/double room, featuring a spacious en-suite shower room. This room also has a private balcony with views of the slopes behind the chalet. Heading down the corridor is the primary bedroom, which can also be a twin or double, a stylish and spacious bedroom with a private balcony and a large ensuite shower room with a walk-in shower.

Stairs on this floor lead up to a mezzanine level on the top floor.

This is a beautiful alpine chalet, spacious and elegant, with room for the whole family, an outdoor hot tub and a games room. With easy access to the heart of Meribel via the Olympic gondola, only a five-minute walk away.

Numéro d’enregistrement :  073 100 730 1522


Property highlights

  • 300 Square metres
  • Sleeps 8+4
  • 5 Bedrooms
  • Games room
  • Outdoor hot tub
  • New to Bramble Ski
View 20 amenities

Enquire today

Chalet L’Orchidée

Price from EUR 17,100 to EUR 35,290

Security Deposit: EUR 5,000

BETA Chalet Enquiry
Our sales team is available 7-days a week between 09.00 to 19.00 (Central European Time) on +41 43 883 9040.

Service levels

Floorplans

Ground Floor

  • Ski room
  • Private laundry room
  • Games room
  • 1 x Bunk room, sleeping four children with an ensuite bathroom
  • 1 x Twin/Double room with en-suite shower room
Download

First Floor

  • Open plan kitchen, living room and TV room
  • Hot tub
Download

Second Floor

  • 1 x Twin/Double bedroom with ensuite shower room
  • 1 x Primary bedroom, twin/double with ensuite shower room and private balcony
  • 1 x Twin/double bedroom with ensuite shower room and private balcony
Download

Third Floor

  • Mezzanine level accessed via stairs
Download
  • Ground Floor

    • Ski room
    • Private laundry room
    • Games room
    • 1 x Bunk room, sleeping four children with an ensuite bathroom
    • 1 x Twin/Double room with en-suite shower room
    Download
  • First Floor

    • Open plan kitchen, living room and TV room
    • Hot tub
    Download
  • Second Floor

    • 1 x Twin/Double bedroom with ensuite shower room
    • 1 x Primary bedroom, twin/double with ensuite shower room and private balcony
    • 1 x Twin/double bedroom with ensuite shower room and private balcony
    Download
  • Third Floor

    • Mezzanine level accessed via stairs
    Download
Let us help you write your winter story Speak to our team

The location

Chalet L'Orchidée is located in the peaceful Raffort Hameau, just a 5-minute walk to the Olympic gondola, which takes you straight to the heart of Meribel.

Proximity

Méribel Olympic Gondola - 5-minute walk

Méribel village - 5-minute drive

Address

Méribel Les Allues, France

Latitude: 45.40952, Longitude: 6.55736

Discover Méribel

Inspiration for your upcoming Méribel holiday Discover Méribel